New FBO building at Spanish Fork Airport approved, to be built within the next year
- Digital renderings of the new Fixed Based Operator building that will replace the existing one at Spanish Fork Airport.
- A depiction of where the new Fixed Based Operator building at the Spanish Fork Airport will be built.
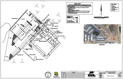
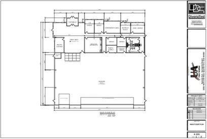
- Plans for the new Fixed Based Operator building at Spanish Fork Airport that was approved on Wednesday, Aug. 2, 2023.

Courtesy Spanish Fork Development Review Committee
Digital renderings of the new Fixed Based Operator building that will replace the existing one at Spanish Fork Airport.
The Fixed Based Operator building at the Spanish Fork Airport was approved for a complete renovation during a meeting of the city’s Development Review Committee on Wednesday.
The original building was constructed over 50 years ago and met the needs of the people then, but Spanish Fork is growing.
Dave Anderson, department director for Spanish Fork’s Development Review Committee, said that at the present moment, Spanish Fork has largely outgrown that building and it is long due for a new FBO building to meet community needs. It is expected to be complete within the next year, he said.
The building is a place where FBO employees can meet with pilots and others in need of airport services. An FBO is an entity that has been given authorization by the airport to provide services such as fueling, aircraft parking, aircraft rental and flight instruction. As pilots and those in need of these services stop at the Spanish Fork Airport, the FBO building will be there to accommodate them with a room to meet in, a pilot’s lounge, a restaurant and other amenities. However, Anderson said anyone in the airport has access into the FBO building to eat at the restaurant or simply watch planes take off.
According to Anderson, FBOs are “the nerve center for airports in a lot of ways, just in terms of them providing services that the airport industry absolutely needs.”

Courtesy Spanish Fork Development Review Committee
A depiction of where the new Fixed Based Operator building at the Spanish Fork Airport will be built.
The airport has several thousand takeoffs and landings each year, thousands of square feet of hangar space have been added, and construction of other areas of the airport is ongoing. “This new facility really is needed both to accommodate the growth of the airport but also to provide a higher level of service than what’s been offered in the past,” Anderson said.
The existing building is approximately 8,000 square feet, and the new building would be nearly double in size at 14,000 square feet. The multimillion-dollar project, Anderson said, will create a comfortable and accommodating stop for pilots, which has the potential to encourage more pilots to stop at Spanish Fork Airport for services.
“While we think the inland port project will add to the demand for services at our airport, (the FBO) project is not tied to that project in any way,” he said.
According to Anderson, the developer will be Steve Wilson, the owner of Utah Aviation, who also operates the existing FBO building. “So this is really him upgrading his facility,” he said. Per a statement by Wilson on GlobalAir.com, the new FBO building “will include approximately 20,000 (square feet) of hangar space and 5,000 (square feet) of office and pilot accommodations.”
Anderson said the new building will “be a much more beautiful, attractive and appropriate facility for what really is the front door of our airport.” As the first place many people arriving at the airport will go, he added, it is “what people will remember about their experience in Spanish Fork and the Spanish Fork airport.”

Courtesy Spanish Fork Development Review Committee
Plans for the new Fixed Based Operator building at Spanish Fork Airport that was approved on Wednesday, Aug. 2, 2023.





